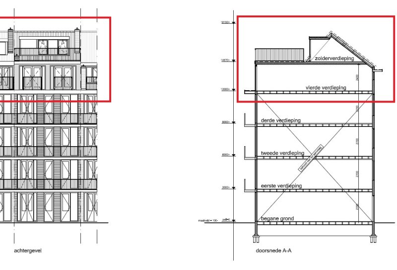
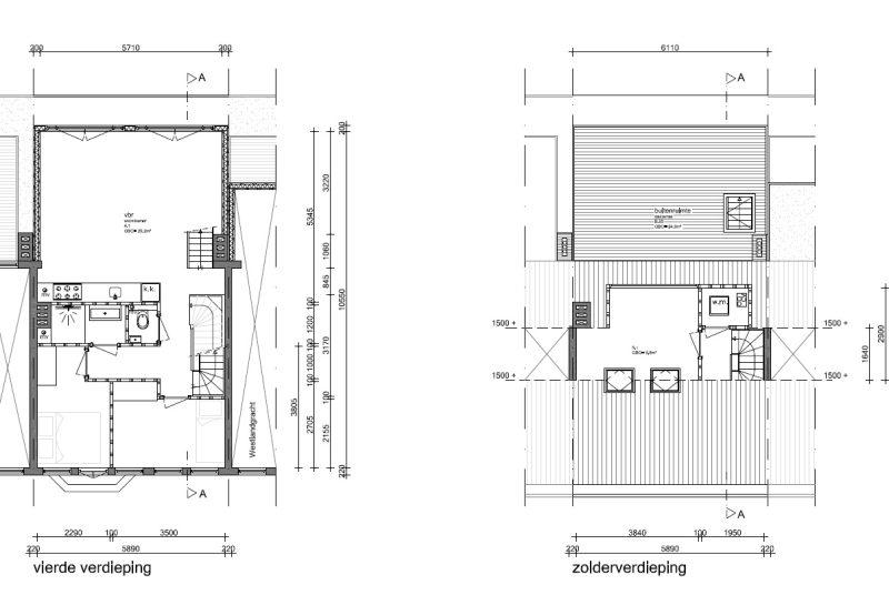
City Vastgoed gaat een riant 4-kamer appartement in Amsterdam met dakterras ontwikkelen.
Het betreft een royale woning (ca. 80m2 ) met een zonnig dakterras (ca. 25 m2)
Voor meer informatie over onze projecten kunt u contact opnemen met: Tom Meertens | info@cityvastgoed.com | 020-7770053
BIJZONDERHEDEN:
– Eigen grond
– High-end gerenoveerd appartement met dakterras
– Schitterend dakterras (ca. 25 m2) met prachtig uitzicht
– Woonoppervlakte ca. 80 m2
– Volledig geïsoleerd, nieuwe kozijnen met dubbele beglazing, CV-Ketel 2017
– 3 slaapkamers
– Luxe keuken met alle denkbare inbouwapparatuur
– Luxe badkamer met vloerverwarming, dubbele douche en wastafelmeubel
– Project notaris
City Vastgoed vindt het belangrijk om zo duurzaam mogelijk te bouwen. Duurzame woningen zijn energiezuiniger, beter voor het milieu en tevens gezonder voor de bewoners. Vernieuwbouw is een van de meest effectieve manieren om duurzaam te bouwen. Hierdoor wordt immers de levensduur van het pand verlengd. Het streven is altijd om een energielabel A te realiseren bij onze projecten.
Voor meer informatie over dit project kunt u contact opnemen met Tom Meertens | info@cityvastgoed.com





















































